電廠脫硫的工藝流程
電廠燃煤脫硫的方法根據脫硫過程產生時段的先后,可分為燃燒前、燃燒中和燃燒后三大類。燃燒前稱為煤炭脫硫主要有洗選煤、化學脫硫和煤炭轉化等;燃燒中稱為爐內脫硫主要有循環流化床和爐內伴燒脫硫等;燃燒后脫硫也稱煙氣脫硫,根據脫硫介質的溫度又可再分為濕法、干法和半干法。目前火電廠采用的主流脫硫方法為煙氣脫硫。
電廠煙氣脫硫治理分干法和濕法2種。目前世界上使用范圍較廣的脫硫方法是濕法脫硫,約占脫硫總量的80%以上。常用的濕法脫硫方法,根據其所選用的吸收劑不同,又可分為石灰石-石膏法、鈉堿法、雙堿法、氧化鎂法、氨法等等。在濕法脫硫中,石灰石-石膏法因其原料來源廣且成本低,技術成熟且經濟性高,應用較為廣泛,鎂基脫硫(氧化鎂法)脫硫效率高、投入成本低技術成熟在山東、遼寧、河北等礦產資源豐富的地方得到青睞。
電廠脫硫的用粉要求
物料 細度(目) 通篩率(%)
石灰石一 250 95
石灰石二 325 90
氧化鎂 325 D90
注:CaO含量在50%以上,存在地區差異。

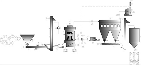
立磨工藝流程示意圖
電廠脫硫劑制粉設備一體化定制方案
1. 原料檢測,項目跟進
擁有獨立的原料檢測實驗室,能幫助客戶完成脫硫石灰石原料礦物的品位化驗,以確定理想的研磨方案;并能化驗成品粉體的細度與粒度分布、反應活性從而確定脫硫效率,為客戶提供改善石灰石粉品質及產量的技術支持。上海科利瑞克機器專業的商務團隊會協助跟進項目的申報等工作,保障客戶的項目有序推進。
2.現場勘探,工藝設計
上海科利瑞克機器擁有卓越的技術服務團隊,其中理想工程師32人,工程師60人,理想技師125人,專業售前技術團隊,依托客戶需求,利用專業化工具進行現場實地規劃,為客戶提供詳細的項目設計方案,提供理想的設備選型方案、設備清單及項目造價、設計現場基礎圖紙,并能根據客戶的特殊要求設計特殊的工藝和流程。團隊專業技術涵蓋石灰石制粉的整個工藝鏈。
3. 設備選型
電廠脫硫劑制粉設備一般選用立式磨粉機。